Каталог Rehau Euro design 70
Rehau Euro 70 - это пятикамерная профильная система, параметры которой полностью соответствуют требованиям по теплоизоляции жилых домов в Украине. В сочетании с демократичной ценой и множеством вариантов оформления окна из такого профиля позволяют реализовать разнообразные архитектурные решения.
Окна из данного профиля - разумные инвестиции, которые помогут уменьшить теплопотери любого помещения, сократить расходы на его отопление и кондиционирование. Производитель рекомендует изготавливать из Rehau Euro 70 окна и балконные двери. Устанавливать профильные системы можно и в частных, и в многоквартирных домах. Особо производитель рекомендует данные светопрозрачные конструкции при термомодернизации старого жилищного фонда.
Преимущества окон Rehau Euro design 70
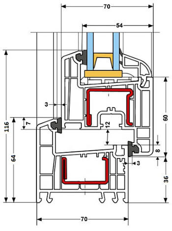
- Профили Rehau Euro 70 обладают теплоизоляцией на уровне R0 более 0,77 м2°C/Вт благодаря монтажной глубине 70 мм, 5-камерной структуре и двум контурам EPDM-уплотнителей.
- Окна Rehau Euro 70 оградят от шума. Установка стеклопакетов толщиной до 42 мм помогает достичь звукоизоляции на уровне класса 4 (индекс звукоизоляции профиля – 42 дБ).
- Изоляционные характеристики системы: водонепроницаемость до класса 9А по EN 12208, воздухонепроницаемость до класса 4 по EN 12207.
- Взломостойкость с применением противовзломной фурнитуры – до класса WK 2 согласно ENV 1627-1630.
- Внешняя поверхность окна Rehau Euro 70 выполнена из высококачественного ПВХ Rehau HDF (High Definition Finishing), очень гладкого, легкого в уходе и устойчивого к атмосферным воздействиям.
- В системе Rehau Euro 70 могут быть реализованы окна, балконные двери, а также конструкции нестандартных форм и размеров.
- Окна Rehau Euro 70 могут быть ламинированы с наружной и/или внутренней стороны термопластичными пленками по палитре Renolit / Hornschuch (Германия). Возможно также ламинирование профилей с обеих сторон на цветной основе – коричневой или карамельной.
- Доставка и монтаж окон Rehau в Харьков и Харьковскую области составляет 4-5 рабочих дней.
Технические характеристики окон Rehau Euro 70
| Монтажная глубина, мм |
Взломостойкость |
Контуров уплотнения, шт. |
R0* профилей, м2°C/Вт |
Толщина стеклопакета, мм |
| 70 |
до класса WK 2 |
2 |
0,77 |
до 42 |
* Коэффициент сопротивления теплопередаче. Физическая величина, показывающая степень теплоизоляции различных материалов и конструкций. Чем выше R0 – тем теплее материал, тем лучше он задерживает тепло.
Заполните форму и Наш специалист свяжется с Вами
Чтобы ознакомиться с другими профильными системами Rehau, посетите следующие разделы: